Own the Adventure

Luxury Townhomes Coming Soon. Sold Individually.

Modern Mountain Living

We are expanding. Our new townhomes offer ski-in/ski-out access, modern architecture, and full access to an increasing amount of mountain amenities.

Design

Contemporary aesthetic with floor-to-ceiling windows and sustainable materials. Private garages per unit, walk out living rooms to patio and ski lift, and energy efficient design.

Ownership

Fee-simple ownership. Perfect for seasonal getaways or rental income.

Available Floor Plans

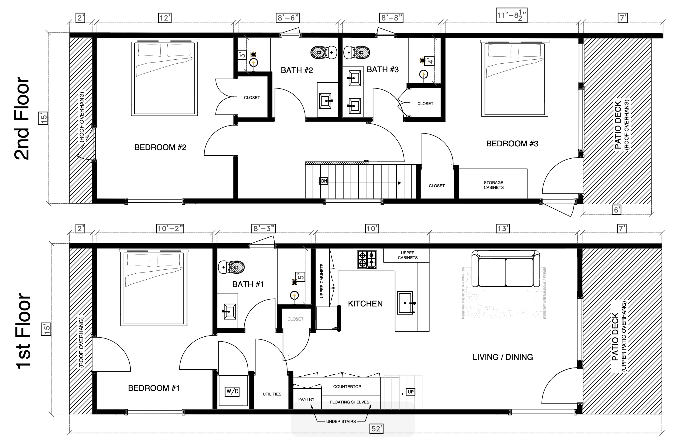
Choose the layout that fits your lifestyle. Each unit features open-concept living, mudrooms for gear storage, and expansive lift side patios.

The Alpine Floorplan Coming Soon

The Alpine

3 Bed | 3 Bath | 1,700 Sq Ft

Perfect for families. Features a master suite on the main level and a bunk room and third bedroom upstairs.


Starting at $TBD
The Summit Floorplan Coming Soon

The Summit

4 Bed | 4.5 Bath | 2,400 Sq Ft

Our largest layout. Options include a private elevator, dual master suites, studio suite at ground level, and a mountain balcony.


Starting at $TBD Download PDF →

Request Floor Plans & Pricing